logo
home
about the architect
why hire us?
project
contact us

 


 

 

Uplands Single Family Residence

 

Garage Photo
Site Plan

 


Level #1
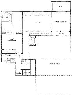
Basement Floor Plan


Level #2 Main Floor Plan

Finished Project
Level #3 Upper Level Floor Plan

 


East Elevation

 


West Elevation (Ocean View)

 


North Elevation

 


South Elevation

More drawings: Project 3
Back to Drawing Index

All designs and documents are protected by copyright law.
They may not be used or copied without written permission of Bert Lemke, architect.

© Copyright 2005, Seascape Design, 258 Farallon Court, Aptos, CA 95003 (831) 688-6642